Diseño de la Casa Prefabricada SQ64

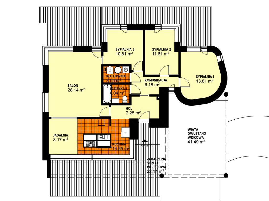
Planta baja

1. Sala: 7.28 m²
2. Salón: 28.14 m²
3. Cocina: 14.85 m²
4. Comedor: 8,17 m²
5. Cuarto de baño: 4.04 m²
6. Dormitorio 3: 10.81 m²
7. Dormitorio 2: 11.61 m²
8. Dormitorio 1: 13.81 m²
9. Comunicación: 6.18 m²
10. Cobertizo de dos plazas: 41.49 m²
11. Caldera: 3.55 m²
12. Cobertizo de entrada cubierto: 22.14 m²

Situacion

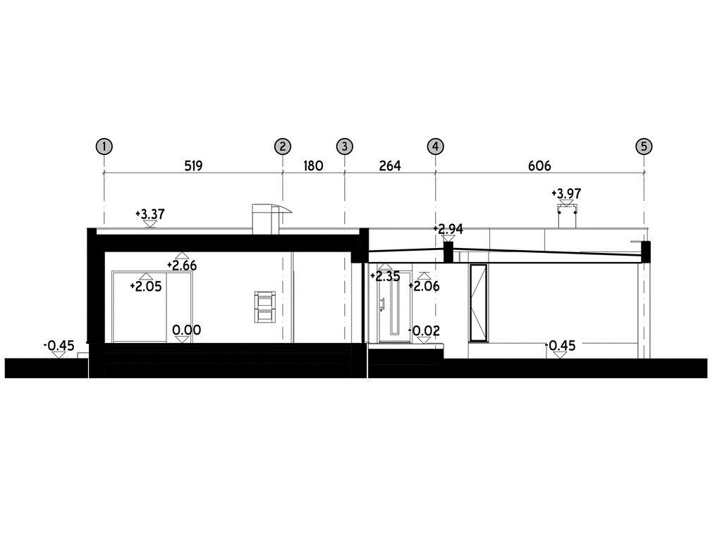
Sección

Elevación Frontal

Proyecto de casa EX 6 con techo Energo Plus Referencia: FHS-CP-001
Pow Utilizable 160,73 m²
Tecnología Steel Frame
Garaje Garaje
Dimensiones mínimas de la parcela: 29.3 x 22.2 m
Casa 11.1 diseño del hogar Referencia: FHS-CP-003
Pow Utilizable 201,13 m²
Tecnología Steel Frame
Garaje De dos pisos
Dimensiones mínimas de la parcela: 35.3 x 19.5 m

Tecnología de producción

  • Estructura en Steel Frame
  • Aislamientos de paredes y techos con lana de roca o similar para cumplir la normativa vigente en tema termico y acustico.
  • Carpintería de ventanas y puertas: ventanas y puertas de Aluminio, puertas de garaje seccionales.
Referencia: FHS-CP-013
Pow Utilizable 108.24 m²
Pow. Edificios 141.21 m²
Min. Ancho de la parcela 23.26 m
Min. Longitud de la trama 22.56 m
Plantas De una planta
Ático Sin ático
Sótano No
Garaje Garaje
Tipo de techo Plano
Altura de la casa 3.83 m
Ancho de la casa 16.26 m
La longitud de la casa 13.56 m
Cubature 455 m³
Pendiente del techo 1o
Tipo de edificio Separado
Tecnología Steel Frame
Estilo Modern
Ridge Indiferente
Habitaciones 4
Baños 1
Chimenea
Contáctenos

Nombre *:

Apellido *:

E-mail *:

Lugar *:

Teléfono *:

Comentario: