Diseño de la Casa Prefabricada SQ27
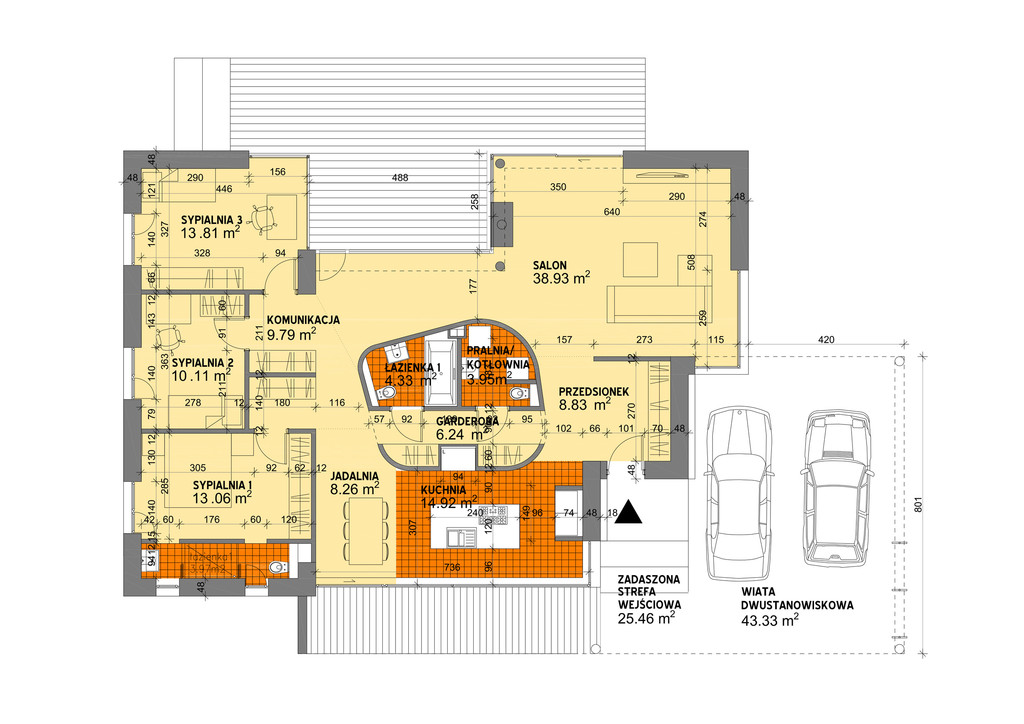
Planta baja
								1. vestíbulo 8.83 m²
2. comunicación 9.79 m²
3. cocina 14.92 m²
4. salón 38.93 m²
5. comedor 8,26 m²
6. Dormitorio 1 13.06 metros cuadrados
7. Dormitorio 2 10.11 m²
8. armario 6.24 m²
9. Dormitorio 3 13.81 m²
10. Baño 1 3.97 m²
11. Lavandería / sala de calderas 3.95 m²
12. Baño 2 4.33 m²
13. superficie 136,20 m²
Situacion
							Elevación Frontal
									La fachada trasera
							Elevación Lateral
							Elevación lateral
							
								| Pow Utilizable | 160,73 m² | 
|---|---|
| Tecnología | Steel Frame | 
| Garaje | Garaje | 
| Dimensiones mínimas de la parcela: | 29.3 x 22.2 m | 
								| Pow Utilizable | 201,13 m² | 
|---|---|
| Tecnología | Steel Frame | 
| Garaje | De dos pisos | 
| Dimensiones mínimas de la parcela: | 35.3 x 19.5 m | 
Descripción del proyecto SQ27
Una casa minimalista, separada de una planta con un refugio de dos lugares y habitaciones para una familia de tres o cuatro personas. Un núcleo central con forma aerodinámica, en el que se colocan salas técnicas y un vestidor, es característico del hogar. El diseño de las habitaciones restantes le permite moverse, creando relaciones espaciales interesantes en el interior de la casa. La casa tiene una forma simple y es simple de implementar. El gran acristalamiento del edificio expone el interior de manera efectiva y permite el calentamiento natural de las habitaciones durante el invierno. El techado ligero de los techos del edificio diversifica la forma del edificio y proporciona un primer plano elegante para entrar en la casa. La casa no tiene sótano La casa se puede ubicar fácilmente en una parcela con entrada / entrada desde el sur y puede tener acceso al cobertizo desde el lado angosto de la casa,
Tecnología de producción
- Estructura en Steel Frame
 - Aislamientos de paredes y techos con lana de roca o similar para cumplir la normativa vigente en tema termico y acustico.
 - Carpintería de ventanas y puertas: ventanas y puertas de Aluminio, puertas de garaje seccionales.
 







