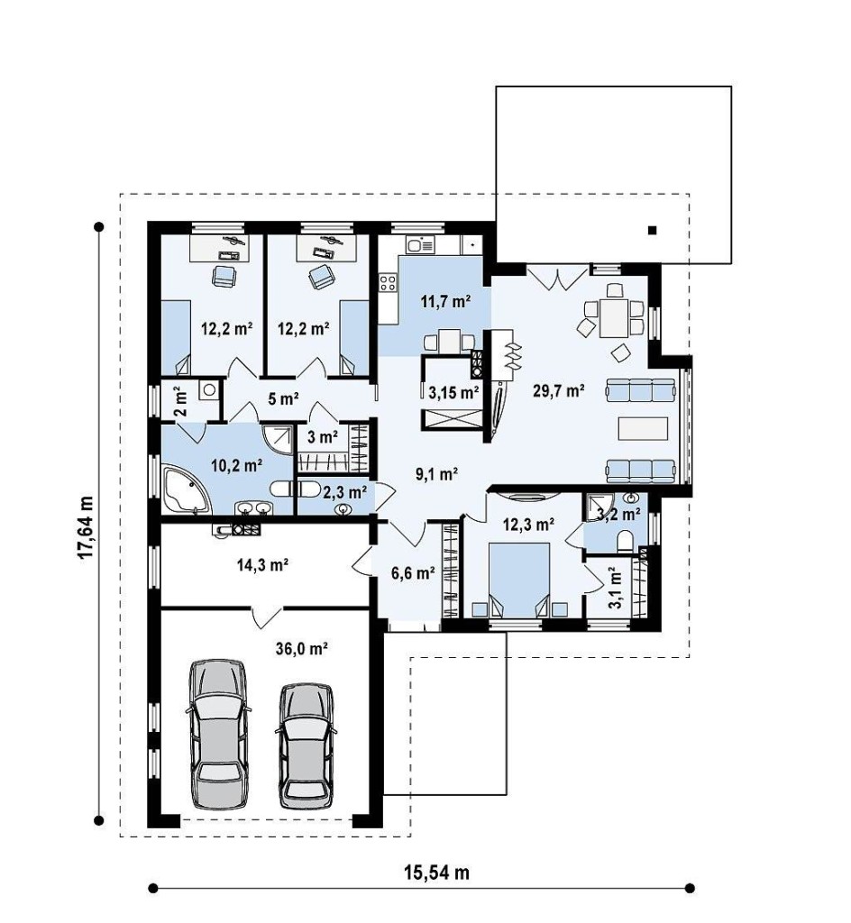
Casa Prefabricadas Leon – desde 176.5 m²
Vivienda con 3 dormitorios, 3 baños, vestidor, salón – comedor, cocina, despensa, lavadero, garaje, porche, terraza.
TOTAL SUPERFICIE CONSTRUIDA: 274 m²
TOTAL SUPERFICIE ÚTIL: 176.5 m²
Cualquier vivienda estándar puede modificarse tanto en distribución interior como en superficie (ampliando o disminuyendo espacios).
(sin incluir porche posterior ni módulos de garaje)












