Casa Prefabricadas Alhama – desde 158,9 m²
Casa de 2 pisos con 3 dormitorios, 2 baños, salón, comedor, cocina, oficina/sala de estudio, lavadero, garaje.
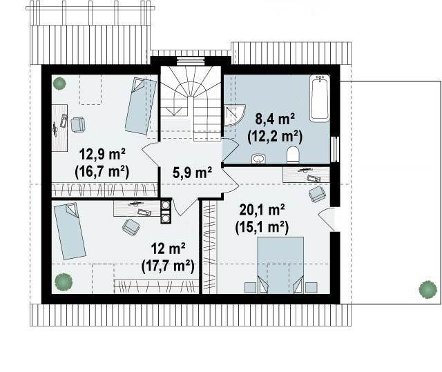
SUPERFICIE CONSTRUIDA TOTAL: 195,1 m²
SUPERFICIE TOTAL ÚTIL: 158,9 m²
Cualquier vivienda estándar puede modificar tanto en distribución interior como en superficie (ampliando o disminuyendo espacios).
(sin incluir porche posterior ni módulos de garaje)












